Bureau à louer à Wemperhardt - Réf. 7006724

1 900 €
111,88 m2

Détails de la location

Dépôt de garantie : 3 800 €
Meublé : non
Disponibilité : À convenir

Description du bien

Le nouveau projet immobilier "Op der Haart" est un projet mixte en cours de construction comprenant 6 unités commerciales et 10 bureaux.

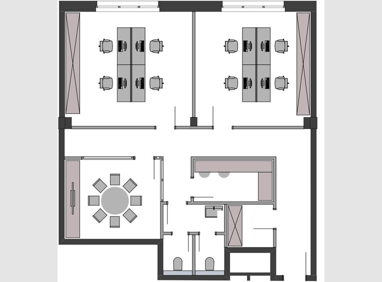
La surface de bureau n°2 de 111,88 m² est composée comme suit : hall d'entrée (22,67 m²), bureau 1 (27,08 m²), bureau 2 (24,53 m²), salle de réunion (14,24 m²), WC (8,09 m²), cuisine (6,28 m²), archives (3,70 m²) et 4 parkings.

La résidence est situé dans une zone commerciale et à proximité de toutes les infrastructures. Le terrain est facilement accessible via la N7.

Loyer : 1.900 € ( 17% MwSt.)
Caution : 2 mois de loyer
Commission : 1 mois de loyer 17% de TVA

Pour de plus amples informations et/ou des visites, veuillez nous contacter. Téléphone : 352 26 95 71 11
Das neue Immobilienprojekt "Op der Haart" ist ein im Bau befindliches Mischprojekt mit 6 Gewerbeflächen und 10 Büroeinheiten.

Das Büro n°2 von 111,88 m² setzt sich wie folgt zusammen: Eingangshalle (22,67 m²), Büro 1 (27,08 m²), Büro 2 (24,53 m²), Versammlungsraum (14,24 m²), WC (8,09 m²), Küche (6,28 m²), Archiv (3,70 m²) und 4 Parkplätze.

Die Residenz liegt in einer wirtschaftlichen orientierten Gegend und in der Nähe aller Annehmlichkeiten. Das Grundstück ist über N7 leicht zugänglich.

Miete: 1.900 € ( 17% MwSt.)
Kaution: 2 Monatsmieten
Kommission: 1 Monatsmiete 17% MwSt

Für weitere Information und / oder Besuche, setzen Sie sich mit uns in Verbindung. Tel: 352 26 95 71 11

Demander plus d'infos

Description de l'environnement

Bureau à louer à Wemperhardt - Réf. 7006724

Caractéristiques du bien

Année de construction : 2020

Classe de performance énergétique
A
Classe d'isolation thermique
A

Étage : 1

Réf. sur le site : 7006724

Réf. agence : 4472893

Chauffage

Chauffageoui

Aménagement spécifique

Bureauoui

Contacter l'agence Home & Office Building - Bingen & Partners SA

 

300

 
 
A l'envoi, vous acceptez les conditions d'utilisation
*Champs obligatoires
 
 

Localiser Bureau à louer à Wemperhardt - Réf. 7006724 *

Code postal : 9999

* Attention : L'adresse exacte n’est pas renseignée, le centre de la localité est indiqué sur la carte.

Contact

Home & Office Building - Bingen & Partners SA
3 op der Haart
L-9999 Wemperhardt
Luxembourg
Afficher le numéro
 

300

 
 
A l'envoi, vous acceptez les conditions d'utilisation
*Champs obligatoires
 
Tous les biens de Home & Office Building - Bingen & Partners SA Site Internet de Home & Office Building - Bingen & Partners SA