Bureau à louer à Strassen - Réf. 7171294

0 €
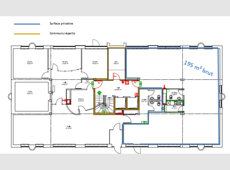
211,00 m2

Détails de la location

Meublé : non
Disponibilité : Immédiate

Description du bien

211 sqm indivisible Office in Office Building
Availability: Immediate

FEATURES
Floor Type: Technical raised
Ceiling Type: Suspended
Layout: Open space
Heating Fuel: Gas
Vertical Transport: Lift/s
Sanitary Facilities: Private

Parking may be available; please discuss with your negotiator.

Please contact us for a detailed Prospectus.
Veuillez nous contacter pour un Prospectus detaillé.

Demander plus d'infos

Description de l'environnement

Bureau à louer à Strassen - Réf. 7171294

Highway: Autoroute à env. 200m
Airport: Aéroport à env. 20km

Caractéristiques du bien

Classe de performance énergétique
N_C

Étage : 0

Réf. sur le site : 7171294

Réf. agence : 154-022775-022777

Contacter l'agence REALCORP LUXEMBOURG

 

300

 
 
A l'envoi, vous acceptez les conditions d'utilisation
*Champs obligatoires
 
 

Localiser Bureau à louer à Strassen - Réf. 7171294 *

Code postal : L-8010

* Attention : L'adresse exacte n’est pas renseignée, le centre de la localité est indiqué sur la carte.

Contact

REALCORP LUXEMBOURG
31 Blvd Prince Henri
L-1724 Luxembourg-Centre-ville
Luxembourg
Afficher le numéro
 

300

 
 
A l'envoi, vous acceptez les conditions d'utilisation
*Champs obligatoires
 
Tous les biens de REALCORP LUXEMBOURG Site Internet de REALCORP LUXEMBOURG